HL保温装饰一体板(聚合聚苯板芯)
文章出处:未知 人气:发表时间:2019-08-29 11:22:28
HL保温装饰一体板(聚合聚苯板)是我们山东汉来准备研发生产的新产品,由保温芯材(AEPS)带饰面层的面板复合而成,必要时可增加底衬,具有保温和装饰功能的板状制品,简称 AEPS 保温装饰板.
复合在聚合聚苯板表面,在保温装饰板中起增强作用的构造层。面板可采用硅酸钙板、纤维水泥板、铝板、钢板,也可以采用具有天然装饰功能的薄型石材。
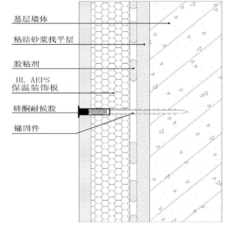
HL保温装饰一体板(聚合聚苯板)外墙外保温系统构造
HL保温装饰一体板(聚合聚苯板)示意图
复合在聚合聚苯板表面,在保温装饰板中起增强作用的构造层。面板可采用硅酸钙板、纤维水泥板、铝板、钢板,也可以采用具有天然装饰功能的薄型石材。
保温芯材:HL聚合聚苯板(简称AEPS)是以特殊成型的模塑聚苯板,经真空吸附渗透工艺,将防火性能水泥等硅质材料或热固性树脂渗透包裹在聚苯乙烯颗粒周围形成蜂窝状,经过一个阶段的养护、固化而成的 HL聚合聚苯板,从而使其燃烧性能达到A级标准。
HL保温装饰一体板(聚合聚苯板)外墙外保温系统构造
HL保温装饰一体板(聚合聚苯板)示意图 下一篇:没有了 上一篇:聚合聚苯板外墙保温系统施工注意事项
同类文章排行
- 三种外墙保温方式介绍与比较
- 山东聚合聚苯板_山东聚合聚苯板生产厂家
- 外墙保温材料应该如何选择
- 聚合聚苯板外墙保温系统配套砂浆传统使
- HL聚合聚苯板怎么样
- 详解聚苯板EPS和挤塑板XPS的区别
- 外墙保温材料易燃起火有哪些原因?
- 建筑材料中哪些是防火保温材料
- 详解建筑保温装饰一体化板
- 改性聚苯板是什么,A级不燃能达到吗
